135 Challenge Crescent
Orleans - Cumberland and Area, 1107 - Springridge/East Village
CA$624,900
For Sale
3
3
2000-2500
Att/Row/Townhouse
Details
Overview
Description
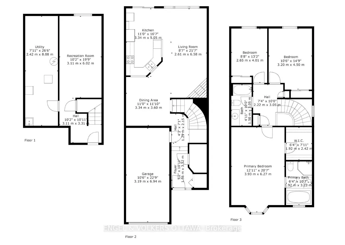
Tucked into a QUIET CORNER of the street with no side or direct front neighbours, this END UNIT townhome offers a rare sense of privacy and has plenty of outdoor space to enjoy. The FULLY FENCED backyard with climbing plants provides a safe place for kids or pets to play, while the SPACIOUS SIDE & FRONT YARDS give you even more room to garden, or entertain. A steel gate separates the front and side yards from the backyard, creating a natural flow while still offering PRIVACY. The brick patio in the back and perennial gardens throughout the yards create a beautiful space to entertain. Step inside to a welcoming layout where a CURVED STAIRCASE makes a great first impression! The main floor features beautifully maintained HARDWOOD floors and a GAS FIREPLACE that adds warmth to the space. In the kitchen, you'll find plenty of cabinets with openings to the dining and living room. Upstairs, all 3 bedrooms offer comfortable proportions with spacious closets. The SLOPED CEILINGS, BAY WINDOW and VIEWS of the Gatineau Hills make the primary bedroom + ensuite a calming space to relax. The FINISHED BASEMENT has a bonus family room and 3-piece rough-in, ready for a 4th bathroom to be added. Ideally situated within WALKING DISTANCE to the FUTURE TRIM LRT station and Crown Pointe Centre, which includes FreshCo, Giant Tiger, Tim Hortons, McDonalds, Johnny Canucks and more, this location offers unbeatable everyday convenience. You are also CENTRALLY LOCATED for quick access to everything along St. Joseph Blvd and Innes Road, making errands, shopping, and dining all easily accessible. *Photos have been Virtually Staged.*
This att/row/townhouse home located at 135 Challenge Crescent, Orleans - Cumberland and Area, ON K4A 0T9 is currently for For Sale and has been available on Wedu.ca for days. This property is listed at CA$625K. It has 3 beds, 3 bathrooms, and is 2000-2500 square feet. The property is N/A years old. 135 Challenge Crescent, Orleans - Cumberland and Area, ON K4A 0T9 is in Orleans - Cumberland and Area neighborhood 1107 - Springridge/East Village.






