300 Ridge Street
CA$985,900
For Sale
4
3
1500-2000
Detached
Details
Overview
Description
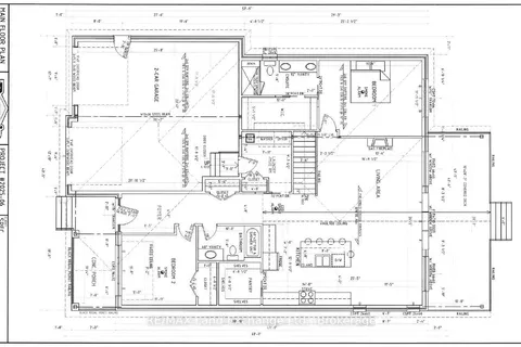
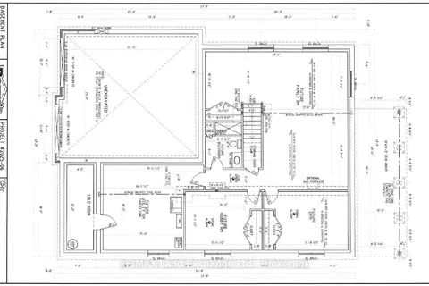
One of our favourite plans. This 2 + 2 bedroom 3 bath bungalow is located in one of Port Elgin's newest streets at 300 Ridge Street; on the south end of town close to walking trails and the beach. Boasting 1605 Sqft on the main floor with vaulted ceilings in the principle area; 9 foot ceilings in the balance, quartz kitchen counter tops, walk-in pantry, gas fireplace, tiled shower in the ensuite bath, hardwood staircase from the main floor to the basement, and hardwood and ceramic flooring. The basement is finished with the exception of the utility room and will feature a family room, 2 bedrooms and 3pc bath. Exterior finishing includes a sodded yard, pressure treated covered deck 10 x 28'3 and double concrete drive. Bonus extras include central air conditioning and automatic garage door openers. HST is included in the list price provided the buyer qualifies for the rebate and assigns it to the Builder on closing. Colour selections may be available to those that act early. Prices subject to change without notice
This detached home located at 300 Ridge Street, Saugeen Shores, ON N0H 2C3 is currently for For Sale and has been available on Wedu.ca for days. This property is listed at CA$986K. It has 4 beds, 3 bathrooms, and is 1500-2000 square feet. The property is N/A years old. 300 Ridge Street, Saugeen Shores, ON N0H 2C3 is in Saugeen Shores neighborhood Saugeen Shores.




