45 Fire Route 223 N/A
CA$1,600,000
For Sale
n/a
n/a
n/a
Vacant Land
Details
Overview
Description
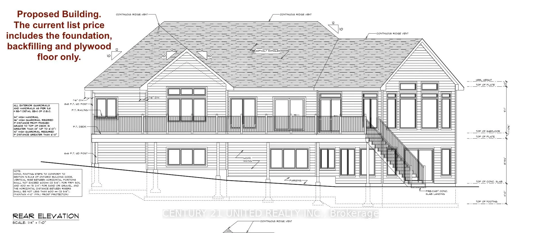
The jewel of the Catchacoma/Mississauga 7 Lake system. This rare 1.12-acre waterfront point lot offers 430ft of pristine shoreline and unmatched privacy. Enjoy all-day sun with southern exposure and breathtaking sunsets from the west-facing beach, plus deep water off the point for boating and swimming. The property comes ready to build with permits and development fees paid, hydro in place, foundation and floor completed, backfilling done, and building plans for a stunning 2,005 sqft per floor cottage. The design features a spacious level plateau for the main build, a walkout lower level, and a gentle slope to another large level area at the waters edge. This crystal-clear, virtually weed-free lake system is known for its depth, granite outcrops, and towering pines. Two full-service marinas are nearby, one with an LCBO. Just minutes off Beaver Lake Road and an easy drive from Toronto, this four-season location is truly exceptional. A rare opportunity to own one of the most magnificent building lots on one of the most beautiful water systems in cottage country. At this point it is not being sold as a complete build but could be completed for an additional cost. Building plans are available for viewing.
This vacant land home located at 45 Fire Route 223 N/A, Trent Lakes, ON K0L 1J0 is currently for For Sale and has been available on Wedu.ca for days. This property is listed at CA$2M. It has N/A beds, N/A bathrooms, and is N/A square feet. The property is N/A years old. 45 Fire Route 223 N/A, Trent Lakes, ON K0L 1J0 is in Trent Lakes neighborhood Trent Lakes.






