56 Millman Lane
CA$1,228,000
For Sale
4
4
2000-2500
Att/Row/Townhouse
Details
Overview
Description
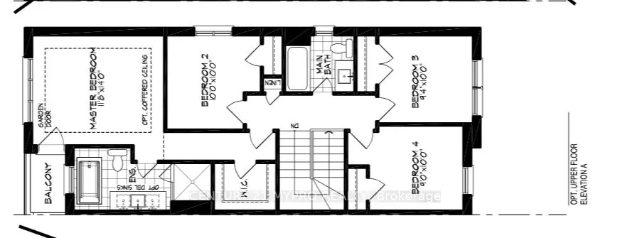
Amazing End-Unit Townhome Like a Semi! Discover this stunning freehold Ivylea townhouse in the heart of Richmond Hill (near 19th Ave & Leslie St). This bright and spacious home offers 4+1 bedrooms, 4 bathrooms, and a thoughtfully designed 3-level layout with a total of 2,268 sq. ft. plus an unfinished basement. Key Features: End-unit property feels just like a semi! Spacious ground-level recreation room, ideal as a 5th bedroom or guest suite. Convenient direct access from the double garage. Soaring 10 smooth ceilings on the main floor. Natural oak veneer staircase. Wide plank laminate flooring in a modern natural finish. Bright, open-concept living and dining spaces perfect for families. Prime Location: Minutes to Richmond Green High School, Costco, plazas, restaurants, Home Depot, Hwy 404, public transit, and more! A rare find and one of the best buys in the area this home is a true must-see!
This att/row/townhouse home located at 56 Millman Lane, Richmond Hill, ON L4E 3R9 is currently for For Sale and has been available on Wedu.ca for days. This property is listed at CA$1M. It has 4 beds, 4 bathrooms, and is 2000-2500 square feet. The property is N/A years old. 56 Millman Lane, Richmond Hill, ON L4E 3R9 is in Richmond Hill neighborhood Rural Richmond Hill.






