154 Doctor Agnes Craine Drive
CA$406,900
For Sale
2
2
700-1100
Att/Row/Townhouse
ਵੇਰਵੇ
ਸਮੂਹਕ ਝਲਕ
ਵਰਣਨ
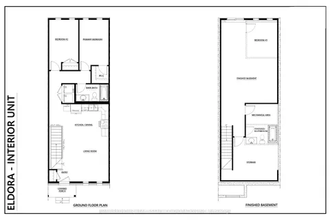
Welcome to the ELDORA, proudly built by Park View Homes a name synonymous with quality craftsmanship, energy efficiency, and thoughtful design. ENERGY STAR-certified home offers beautifully finished living space, perfectly tailored for modern living. The main floor features a bright, open-concept layout that seamlessly blends comfort and functionality. The contemporary kitchen flows into the spacious living and dining areas, creating an inviting atmosphere ideal for both everyday living and entertaining. Two generously sized bedrooms are located on this level, including a primary bedroom complete with a walk-in closet, offering both comfort and ample storage. The finished walkout basement provides incredible flexibility with a large rec room, a third bedroom that can easily serve as a home office, and a full bathroom. This versatile space is perfect for growing families, accommodating guests, or creating a dedicated work-from-home environment. Built with triple-glazed windows and airtightness, this home is designed to deliver long-term energy savings, enhanced comfort, and lasting value. This home is backed by a Tarion warranty for your peace of mind. Experience the benefits of new construction in a thoughtfully designed home that combines style, efficiency, and functionality in every detail. The ELDORA model is ready to welcome you home
This att/row/townhouse home located at 154 Doctor Agnes Craine Drive, Smiths Falls, ON K7A 0A5 is currently for For Sale and has been available on Wedu.ca for days. This property is listed at CA$407K. It has 2 beds, 2 bathrooms, and is 700-1100 square feet. The property is N/A years old. 154 Doctor Agnes Craine Drive, Smiths Falls, ON K7A 0A5 is in Smiths Falls neighborhood 901 - Smiths Falls.






