3841 BIG LEAF Trail
CA$799,900
For Sale
3
3
1500-2000
Detached
விவரங்கள்
மேலோட்டம்
விளக்கம்
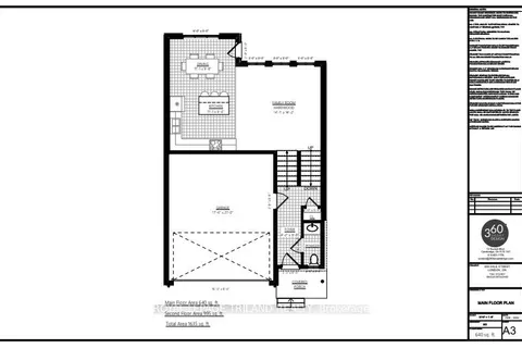
Welcome to the stunning Chateau model, a beautifully designed 2 storey, open-concept home featuring 3 bedrooms and 3 bathrooms Built by Grand Oak Homes, this modern farm house design combines style, function, and comfort with clean lines, 9 foot ceilings, and large windows that flood the home with natural light. The heart of the home is the spacious living area, highlighted by an airy open concept floor plan. The kitchen boasts quality finishes and seamlessly connects to the dining and living spaces, creating the perfect environment for both everyday living and entertaining. Both bathrooms feature luxurious tiled showers, while the master suite offers a tranquil retreat. A double car garage provides plenty of storage and convenience, while the option to add a side entrance for a future basement apartment adds additional potential. Located in the highly sought-after Lambeth Magnolia Fields subdivision, this home is ideally positioned just minutes from Highway 401, Highway 402, schools, shopping, gyms, golf courses, and nature trails. With Grand Oak Homes Renowned attention to detail and customizable plans, you can tailor the home to suit your needs.
This detached home located at 3841 BIG LEAF Trail, London South, ON N6P 0A3 is currently for For Sale and has been available on Wedu.ca for days. This property is listed at CA$800K. It has 3 beds, 3 bathrooms, and is 1500-2000 square feet. The property is N/A years old. 3841 BIG LEAF Trail, London South, ON N6P 0A3 is in London South neighborhood South V.





