69 Thomas Street
CA$849,900
For Sale
3
4
2500-3000
Vacant Land
详情
概览
描述
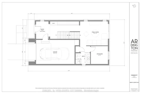
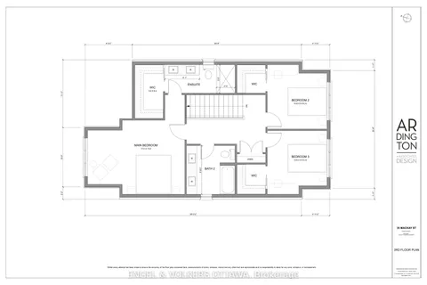
Build your dream home here! Situated in the heart of New Edinburgh, this exceptional lot offers the opportunity to create your dream home in one of Ottawa's most distinguished and historic neighbourhoods. Included with the lot are approved architectural plans by Ardington and Associates for an elegant 3-bedroom, 4-bathroom, 2.5-storey residence. This thoughtfully envisioned home blends classic elegance with contemporary comfort. The proposed design features a light-filled, open-concept main floor ideal for modern living and entertaining, anchored by a chef-inspired kitchen, generous living spaces, and a sleek wine cellar. Upstairs, the primary suite is a true retreat with a spa-like ensuite, while additional bedrooms offer privacy and flexibility. A finished lower level provides versatile space, perfect for a home gym, media room, or play area and an attached garage adds everyday convenience. A truly rare find - this is a chance to build a custom home that seamlessly blends timeless architecture with modern interior living, all in one of Ottawa's most iconic locations steps to Rideau Hall, the Governor Generals grounds, moments to downtown, Union Street Café and Tavern on the Falls, shops and restaurants on Beechwood, and scenic walking trails in Stanley park and along the Ottawa River.
This vacant land home located at 69 Thomas Street, New Edinburgh - Lindenlea, ON K1M 2B2 is currently for For Sale and has been available on Wedu.ca for days. This property is listed at CA$850K. It has 3 beds, 4 bathrooms, and is 2500-3000 square feet. The property is N/A years old. 69 Thomas Street, New Edinburgh - Lindenlea, ON K1M 2B2 is in New Edinburgh - Lindenlea neighborhood 3301 - New Edinburgh.





